
ПК «Веста» объявляет о заказе быстровозводимой мебельной фабрики в г. Чехов, Россия
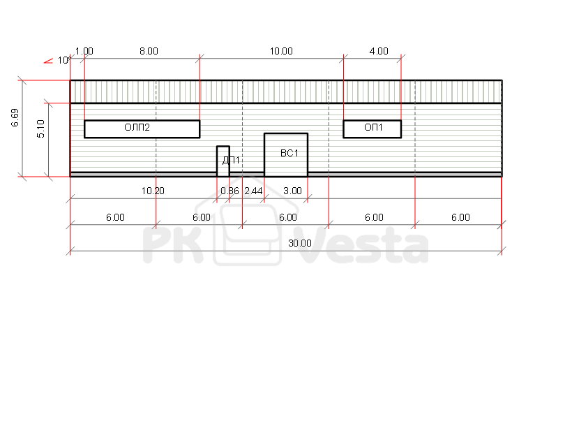
ПК «Веста» объявляет о заказе и конечной фазы монтажа быстровозводимой мебельной фабрики в г. Чехов, Россия (18Ш х 30Д х 5.1В - Серия INDI) В связи со сложностями аренды существующего производства в Москве конечный клиент решил переехать на новое место за чертой Москвы. Был куплен и благоустроен новый участок около Симферопольского шоссе. В наличие все базовые инженерные сети, охрана и ограждение по периметру. Будет куплен новый пакет оборудования для изготовления мебельной продукции.
Быстровозводимое здание из сэндвич панелей будет полностью спроектировано на базе современной строительной технологии ЛСТК (колонны и фермы изготавливаются из холодногнутых оцинкованных профилей) Несущий каркас обшивается классическими сэндвич панелями (КСМ - 120мм и ССП - 100мм) В комплект здания включены все фасонные и крепежные элементы. Шаг рам - 6м. Высота до низа несущих - 4.8м.
Стальное здание было рассчитано в инновационной онлайн платформе Webteel, доступная каждому бесплатно 24 часа и 7 дней в неделю.
Смотрите все новости в Telegram канале:
https://t.me/+ut_53pCgybc0MzYy






















